





Description :
Très bel appartement situé dans le 6ème arrondissement de Lyon - à seulement 200m de l'entrée principale du Parc de la Tête d'Or cet appartement de 70m2 est un véritable havre de paix. Au 9ème et dernière étage - il offre une vue dégagée et imprenable sur Lyon. - Superbe séjour très lumineux avec parquet chêne au sol - 2 chambres spacieuses et lumineuses - Cuisine équipée - Salle de bain - WC séparé . Equipement et avantages: Grand balcon pour profiter de la vue et de la lumière - Cave pour stocker vos affaires personnelles - Chauffage urbain pour une gestion efficace des dépenses énergétiques. Localisation: Proximité immédiate du parc de la Tête d'Or pour des activités en plein air et pour une qualité de vie exceptionnelle. N'hésitez pas à me contacter pour une visite et découvrir ce bien par vous même
Les informations sur les risques auxquels ce bien est exposé sont disponibles sur le site Géorisques : www.georisques.gouv.fr

Classe :
DPE
kWh EP/m².an
412

GES
Classe :
kg éqCO2/m².an
77
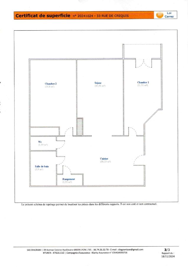
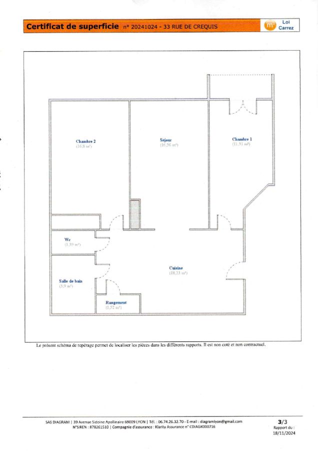
Surface
69

Chambre(s)
2

Détails :
m²

Appelez votre conseiller
Didier
VALENCY
783929643
0
